ZEMLJIŠTE S GRAĐEVINSKOM DOZVOLOM I POGLEDOM NA MORE - KALI, OTOK UGLJAN
Opis
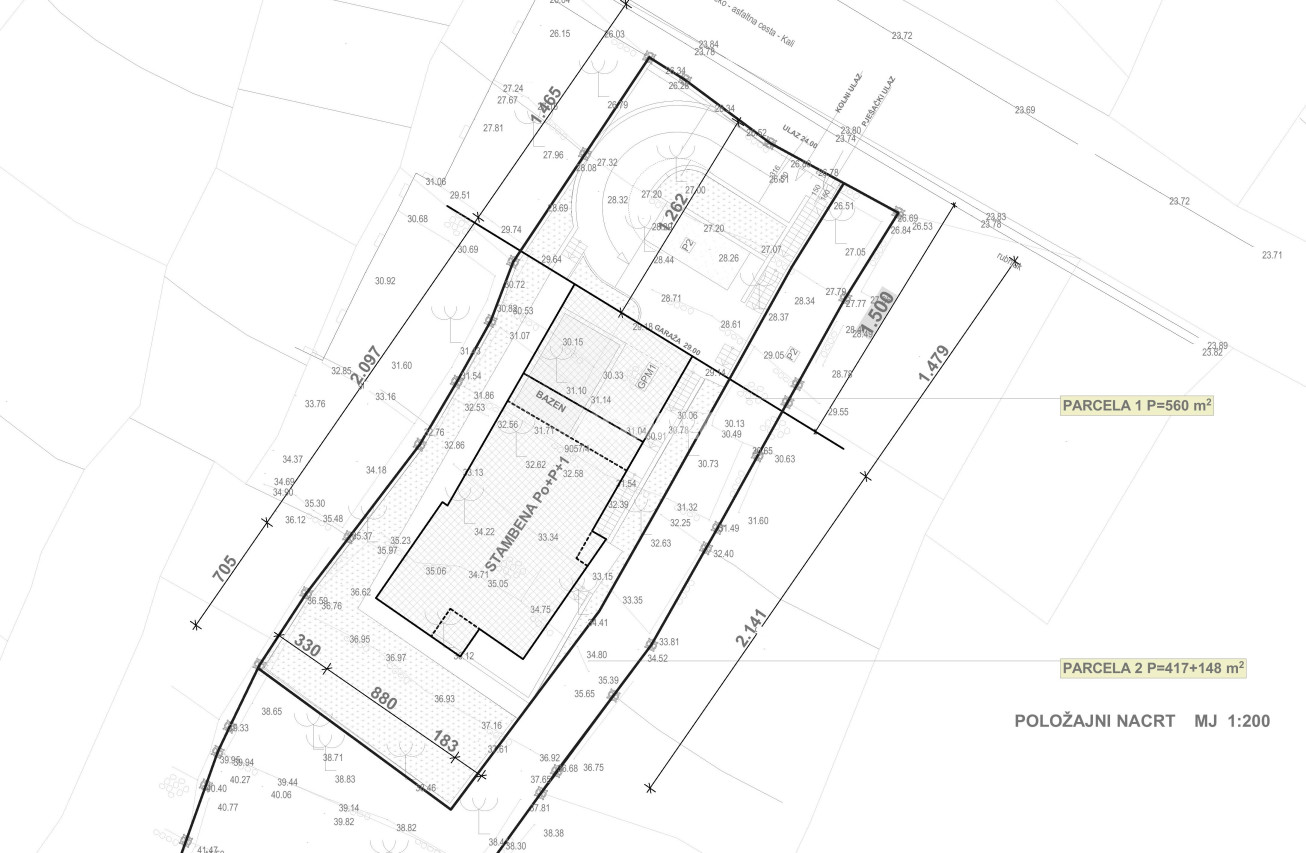
U mjestu Kali na otoku Ugljanu, na prodaju je građevinsko zemljište površine 1125 m2. Smjestilo se na odličnoj lokaciji, samo 200 metara od mora i cca 2,5 km od trajektne luke u mjestu Preko.
Zemljište se diči prekrasnim otvorenim pogledom na more i grad Zadar s okolicom.
Specifičnost ovog terena je to što je za dio od 560 m2 izdana građevinska dozvola za izgradnju obiteljske vile s jednom stambenom jedinicom, a također su u cijenu cijelog zemljišta uključeni projekti, pristojbe te komunalni i vodni doprinos.
Budući vlasnik zemljišta u slučaju potrebe može projekt prilagoditi svojim željama i ambicijama.
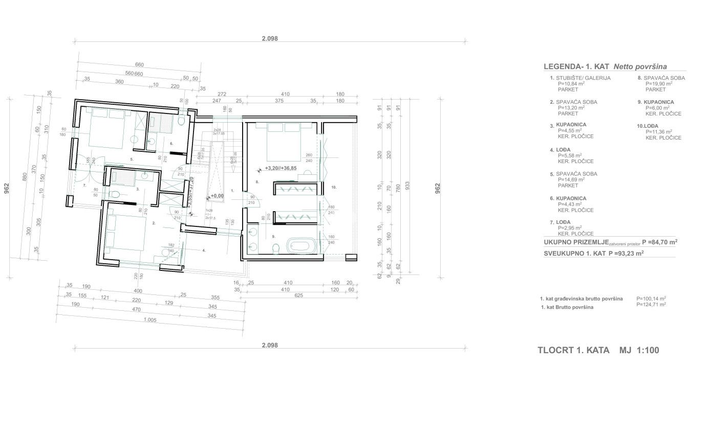
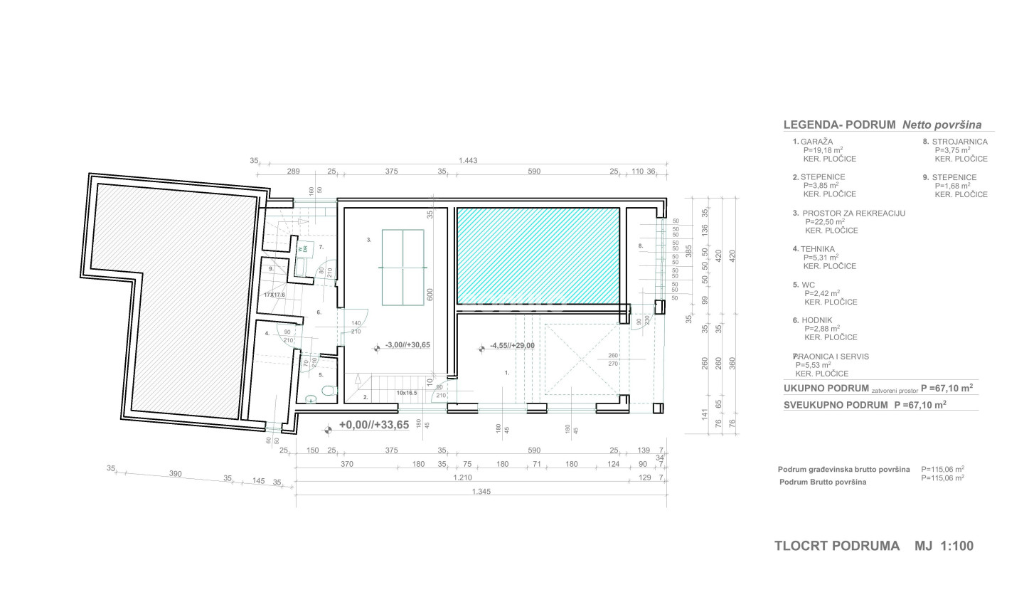
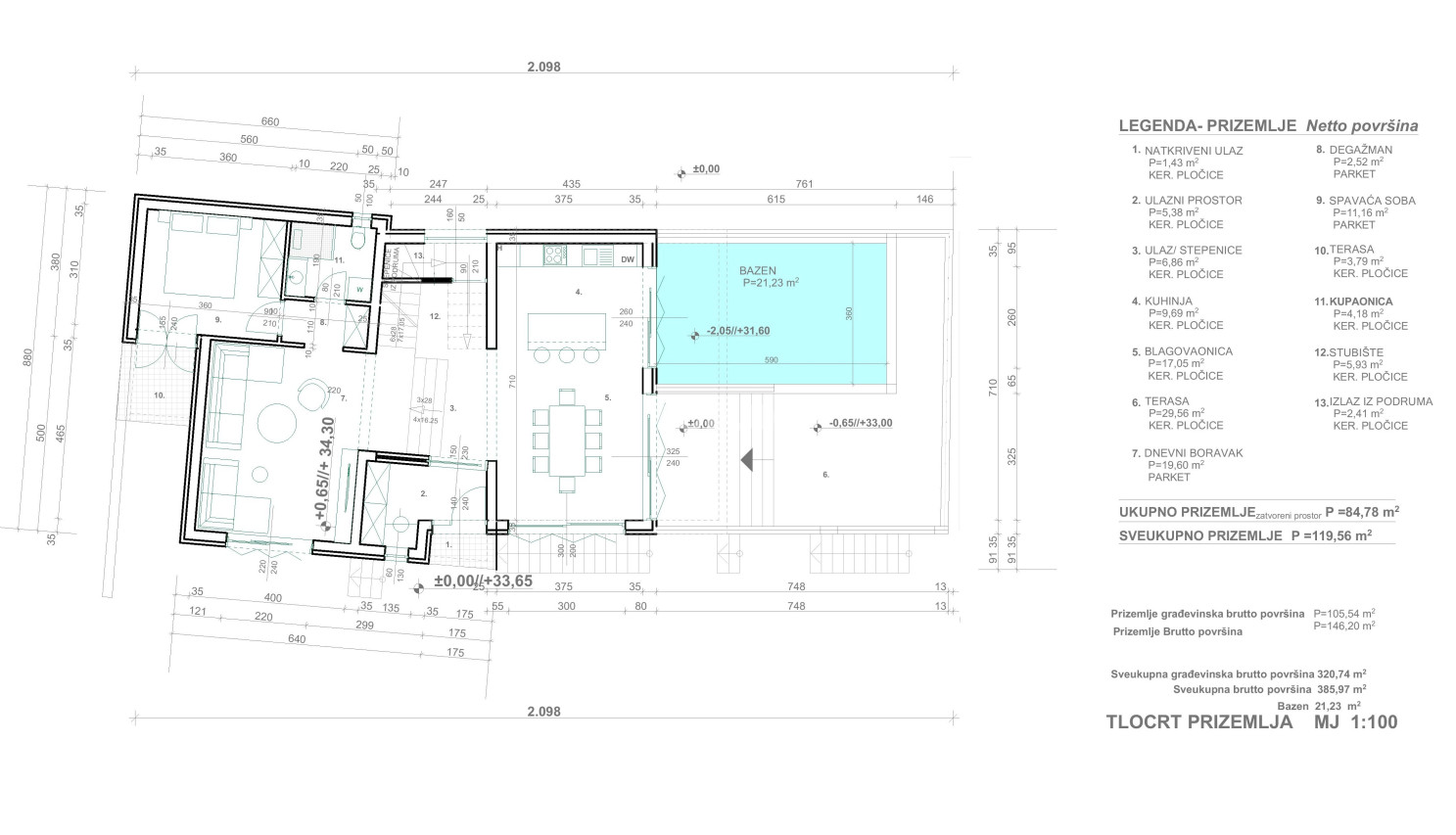
Ovdje je planirana izgradnja kuće na tri etaže - suteren, prizemlje i kat, sve prilagođeno konfiguraciji terena. Na najdonjoj etaži planirana je izgradnja garaže, prostora za rekreaciju, WC-a, tehničke sobe, strojarnice, praonice i servisa. Na etaži iznad biti će smješteni spavaća soba sa kupaonicom i terasom, dnevni boravak, prostrana kuhinja s blagovaonicom s izlazom na polunatkrivenu terasu s pogledom na more i bazenom, zatim na sljedećoj etaži tri spavaće sobe, svaka sa kupaonicom, od kojih glavna soba ima izlaz na lođu s prekrasnim pogledom na more. Svakako, budući vlasnik zemljišta u slučaju potrebe može projekt prilagoditi svojim željama i ambicijama (kroz izmjenu i dopunu građevinske dozvole).
Preostali dio ovog građevinskog terena površine je 565 m2, te ima svoj pristupni put. Također ima predivan pogled na more jer se isto tako nalazi na nagibu, a ovaj pogled je zagarantiran i kada se na donjoj parceli sagradi vila.
Ostale informacije
- Šifra objekta: 56
- Tip: Građevinski teren
- Mjesto: Kali, otok Ugljan
- Naselje:
- Površina: 1125.00 m2
- Dimenzije:
- Asfaltni put: +
- Udaljenost od mora: 200
- Pogled na more: +
- Vlasništvo: 1/1
- Cijena po m2: na upit
- Ukupna cijena: 190.000,00 €

